Vivienda unifamiliar aislada libre valdearenas, Iznájar (Córdoba)

08 agosto 2023 - Estudio - Comentarios -


Hola a todos y a todas. 

En el día de hoy os presento una vivienda unifamiliar aislada libre en Iznájar (Córdoba).

1804_00-vivienda-iznajar-arquitecto-raul-benitez

La vivienda se encuentra en una urbanización residencial, donde predominan las viviendas unifamiliares libres. Se proyecta como una segunda vivienda.

1804_01-vivienda-iznajar-arquitecto-raul-benitez

Este proyecto se inició en 2.018, con el fin de construir una vivienda unifamiliar en el municipio ya mencionado.


Esta vivienda ha sido diseñada en RBM Estudio de Arquitectura a través del arquitecto Raúl Benítez Molina, y dirigida por el mismo y por la arquitecta técnica Ana Mª Núñez Delgado.


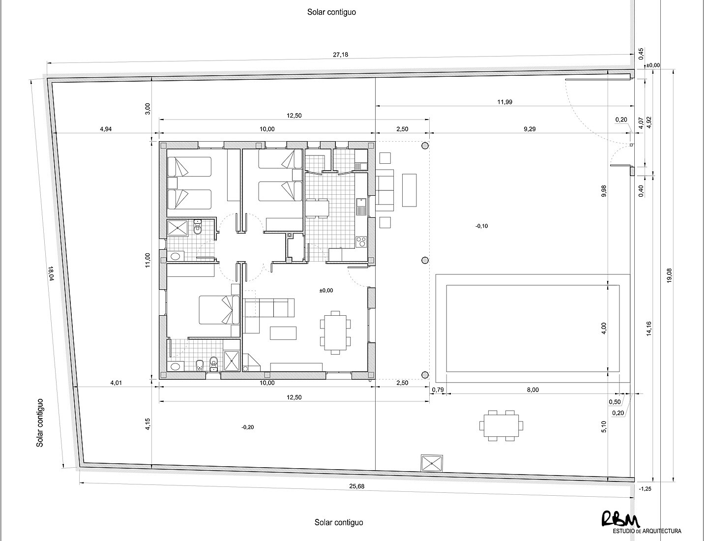
La vivienda se ubica en un solar regular cuya fachada está orientada hacia el sur, con una superficie de solar de 489,43 m² y una superficie construida total de 145,85m²distribuido en una única planta.

1804_02-vivienda-iznajar-arquitecto-raul-benitez

La estructura ejecutada es de hormigón armado. La cimentación consta de una única losa que nace al mismo nivel del terreno y de la cual emergen pilares ejecutados in situ. El forjado de cubierta se trata de un forjado unidireccional de hormigón armado con semiviguetas.


La vivienda cuenta con una cubierta inclinada de teja, que, junto con un espacio accesible para mantenimiento, conforman la cubierta mixta formada por una cubierta plana transitable e inclinada.

1804_04-vivienda-iznajar-arquitecto-raul-benitez

Inicialmente, se proyectaron pilares en el porche, pero por decisión de los promotores se ejecuta en voladizo, reforzando la estructura mediante vigas de cuelgue.

1804_05-vivienda-iznajar-arquitecto-raul-benitez

Se opta por una distribución clásica, en la parte trasera se ubica la zona nocturna y al frente, junto la entrada y el patio, la zona diurna. Cuenta con un gran patio con piscina, un salón, una cocina y 3 dormitorios, uno de ellos cuenta con baño privado.

1804_06-vivienda-iznajar-arquitecto-raul-benitez

El cliente deseaba una vivienda óptima para el descanso, sin escaleras y un porche dónde hacer vida junto a la piscina. En cubierta se propone un espacio para instalaciones.

1804_08-vivienda-iznajar-arquitecto-raul-benitez

Los promotores les daban mucha importancia a las estancias exteriores, por ello, se opta por el diseño de un gran patio que rodee la vivienda. El acceso a ésta se realiza por el patio.


Un saludo.

Raúl Benítez.

+34 647698027 / +34 958192320

info@arquitectoraulbenitez.es

Compartir 
Ver anterior Ver siguiente