Certificado de idoneidad de local comercial en Cuevas de San Marcos (Málaga)

02 octubre 2023 - Estudio - Comentarios -

Hola a todos y a todas. 

En el día de hoy os presento un certificado de idoneidad de local comercial en Cuevas de San Marcos (Málaga).

2150_01_certificado-de-idoneidad-de-local-comercial-cuevas-de-san-marcos-arquitecto-raul-benitez

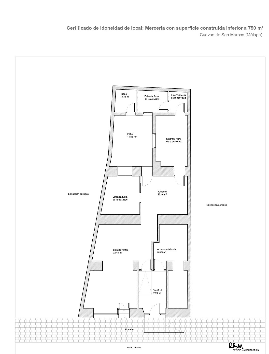
El local comercial se trata de una mercería con superficie construida menor de 750m².

El local forma parte de la planta baja de un edificio de tres plantas (B+2), ubicándose en el lateral derecho y con independencia del resto de plantas. Presenta doble acceso, uno de ellos mediante rampa, con iluminación al viario exterior. No presenta modificación ni alteración tanto en fachada como en interior.

La superficie total del local comercial es de 69,72m². En su interior se distribuye de la siguiente manera:

- Vestíbulo de 7,76m².

- Una sala de ventas de 32,41m².

- Un almacén de 12,18m².

- Patio de 14,06m².

- Baño de 3,31m².

2150_02_certificado-de-idoneidad-de-local-comercial-cuevas-de-san-marcos-arquitecto-raul-benitez

Este proyecto ha sido llevado a cabo en RBM Estudio de Arquitectura a través del arquitecto Raúl Benítez Molina.

El certificado de idoneidad de un local comercial es un documento emitido por el técnico especializado que indica que un determinado espacio cumple con los requisitos y regulaciones necesarios para llevar a cabo actividades comerciales específicas en ese lugar. Su propósito principal es garantizar que el local cumpla con las normativas de zonificación, seguridad, salud pública y cualquier otro requisito legal aplicable para el tipo de negocio que se pretende establecer en ese espacio y así poder recibir la licencia de apertura por parte de las autoridades municipales.

2150_03_certificado-de-idoneidad-de-local-comercial-cuevas-de-san-marcos-arquitecto-raul-benitez
2150_04_certificado-de-idoneidad-de-local-comercial-cuevas-de-san-marcos-arquitecto-raul-benitez
2150_05_certificado-de-idoneidad-de-local-comercial-cuevas-de-san-marcos-arquitecto-raul-benitez
2150_06_certificado-de-idoneidad-de-local-comercial-cuevas-de-san-marcos-arquitecto-raul-benitez

En el certificado se describen las distintas casuísticas que se deben justificar para el cumplimiento de las leyes y del uso del local.

En este se detallan las medidas de los accesos y salidas, comprobando su accesibilidad y evacuación, la ventilación e iluminación determinando los luxes que debe de tener la iluminación interior y la cantidad de renovación de aire. En el caso de los pavimentos, paredes y techos describen el acabado y el cumplimiento de resbaladicidad del suelo. También especifica cómo se encuentra actualmente la estructura y qué acabado tiene, los servicios higiénicos de saneamiento e instalaciones eléctricas en general y su derivación individual. A su vez, trata el apartado de salida de emergencia, el alumbrado y señalización, así como la alarma, detección y seguridad antincendios, incluyendo la ocupación máxima del local, siendo esta de 20 personas.

2150_07_certificado-de-idoneidad-de-local-comercial-cuevas-de-san-marcos-arquitecto-raul-benitez
2150_08_certificado-de-idoneidad-de-local-comercial-cuevas-de-san-marcos-arquitecto-raul-benitez

El autor del documento certifica que el local de uso papelería con superficie construida menos de 750m² presenta características y adecuaciones perfectamente factibles según se indica en la memoria entregada a las autoridades locales. Quedan cumplidas en dicho local las normativas vigentes reflejadas en:

- Código Técnico de la Edificación DB-SI (Documento Básico de Seguridad en caso de Incendio) y DB-SUA (Documento Básico de Seguridad en su Utilización y Accesibilidad),

- Decreto 326/2003, por el que se aprueba el Reglamento de Protección contra la Contaminación Acústica en Andalucía,

- Condiciones de la instalación eléctrica en el marco por el vigente Reglamento Eléctrico de Baja Tensión.

- Accesibilidad según 293/2009.

- Ley 7/2007 de Gestión Integral de Calidad Ambiental y demás Reglamentos y Disposiciones legales en vigor aplicables.

 

Finalmente, el certificado es enviado al Ayuntamiento del Municipio y este le concede la licencia municipal de apertura a petición de nuestro cliente.

 

Un saludo.

Raúl Benítez.

+34 647698027 / +34 958192320

info@arquitectoraulbenitez.es

Compartir 
Ver anterior Ver siguiente