Certificado de asimilado fuera de ordenación en Cuevas de San Marcos (Málaga).

29 agosto 2023 - Estudio - Comentarios -

Hola a todos y a todas. 

En el día de hoy os presento un certificado de asimilado fuera de ordenación (AFO) en Cuevas de San Marcos (Málaga).

1937_01-AFO_vivienda-en-cuevas-de-san-marcos-arquitecto-raul-benitez
1937_01-AFO_vivienda-en-cuevas-de-san-marcos-arquitecto-raul-benitez

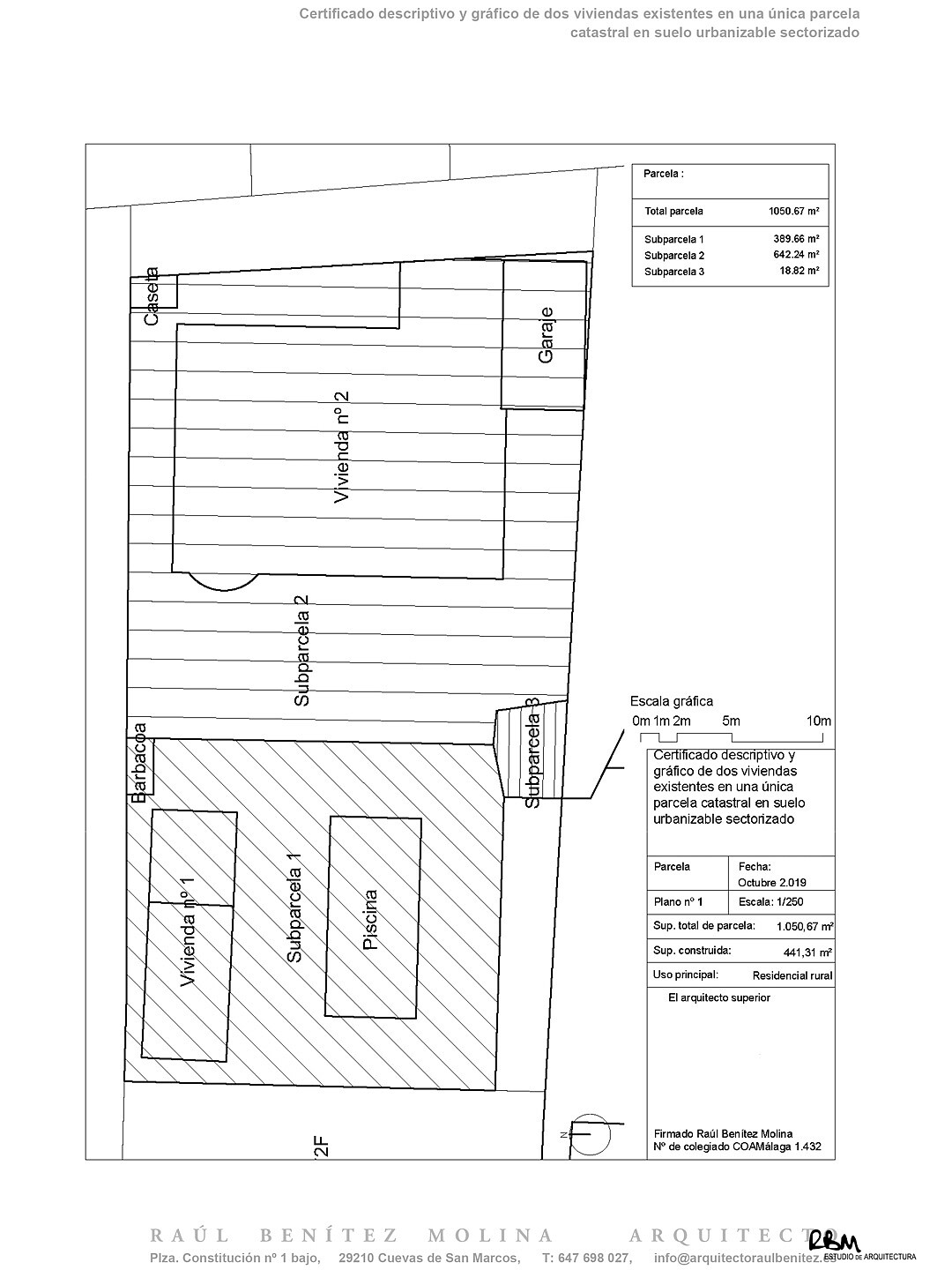
La vivienda se encuentra en Suelo Urbanizable Sectorizado según la Ordenación Urbana del municipio.

La parcela se divide en tres subparcelas: la subparcela número uno, la subparcela número dos y la subparcela número tres (acceso a las anteriores).

El conjunto edificatorio de la subparcela número uno está formado por cuatro edificaciones: vivienda número uno, de una única planta se compone de un porche, salón-comedor, baño y cocina. Además, existe una piscina, barbacoa y sótano.

El conjunto edificatorio de la subparcela número dos está formada por tres edificaciones: la vivienda número dos, de una única planta compuesta por un distribuidor, un salón comedor, una cocina, pasillo, vestidor, cinco dormitorios, dos baños y lavadero. Además de un garaje y una caseta destinada a instalaciones.

1937_02-AFO_vivienda-en-cuevas-de-san-marcos-arquitecto-raul-benitez
1937_03-AFO_vivienda-en-cuevas-de-san-marcos-arquitecto-raul-benitez

Este proyecto ha sido llevado a cabo en RBM Estudio de Arquitectura a través del arquitecto Raúl Benítez Molina.

Este documento lleva aparejado la segregación de las dos fincas por tener acceso al registro de la propiedad como fincas independientes.

1937_04-AFO_vivienda-en-cuevas-de-san-marcos-arquitecto-raul-benitez

El informe detalla los cumplimientos del conjunto edificatorio según la normativa actual, haciendo ver que el complejo edificatorio existente es apto para el uso residencial, ya que cumple con las normas mínimas de seguridad, habitabilidad y salubridad exigidas.

1937_04-AFO_vivienda-en-cuevas-de-san-marcos-arquitecto-raul-benitez

El objetivo es la segregación de la actual parcela en 2 parcelas, cada una con su propia vivienda y, tras un largo periodo, se ha conseguido segregar, siendo el primer caso conocido en el término municipal de Cuevas de San Marcos.

 

Un saludo.

Raúl Benítez.

+34 647698027 / +34 958192320

info@arquitectoraulbenitez.es

Compartir 
Ver anterior Ver siguiente