Proyecto de mejora en el patio infantil del colegio público en Cuevas de San Marcos (Málaga)

21 agosto 2023 - Estudio - Comentarios -

Hola a todos y a todas. 

En el día de hoy os presento el proyecto de mejora en el patio infantil del colegio público en Cuevas de San Marcos (Málaga)

1920_14-cubierta-infantil-cuevas-de-san-marcos-arquitecto-raul-benitez

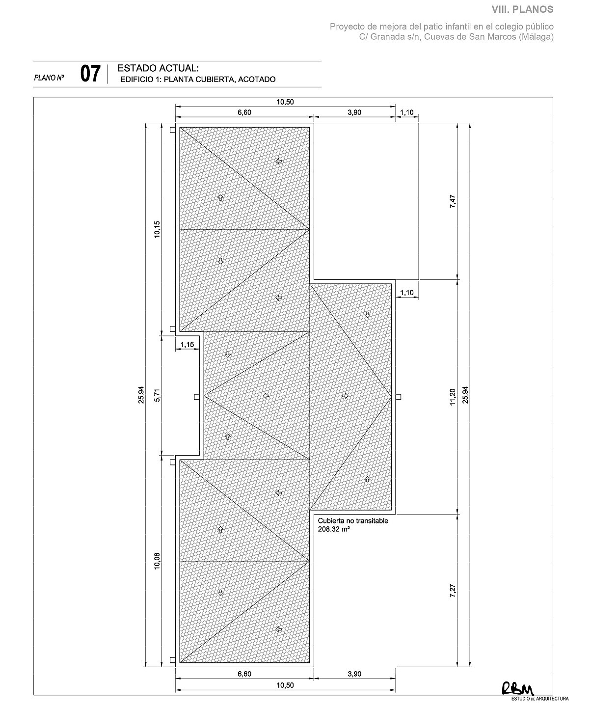
Se pretende realizar tareas de mantenimiento de la cubierta y fachada del módulo infantil y de los distintos porches existentes en el colegio, ampliando las zonas cubiertas en caso de lluvia.

1920_01-cubierta-infantil-cuevas-de-san-marcos-arquitecto-raul-benitez
1920_02-cubierta-infantil-cuevas-de-san-marcos-arquitecto-raul-benitez

El proyecto se inició en 2.019, ha sido diseñado en RBM Estudio de Arquitectura a través del arquitecto Raúl Benítez Molina.

1920_03-cubierta-infantil-cuevas-de-san-marcos-arquitecto-raul-benitez
1920_11-cubierta-infantil-cuevas-de-san-marcos-arquitecto-raul-benitez
1920_10-cubierta-infantil-cuevas-de-san-marcos-arquitecto-raul-benitez

Se realizan las siguientes actuaciones:

1. Repintado de la estructura metálica de los porches.

2. Reparación y limpieza de cubierta invertida no transitable además de los encuentros con los bajantes y los petos.

3. Repintado de fachadas del edificio del módulo infantil.

1920_13-cubierta-infantil-cuevas-de-san-marcos-arquitecto-raul-benitez
1920_15-cubierta-infantil-cuevas-de-san-marcos-arquitecto-raul-benitez

Este es el acabado final de algunas de las partes de la actuación. Esperamos que os guste.

 

Un saludo.

Raúl Benítez.

+34 647698027 / +34 958192320

info@arquitectoraulbenitez.es

Compartir 
Ver anterior Ver siguiente