Vivienda unifamiliar adosada libre con piscina en Villanueva de Algaidas (Málaga)

01 julio 2025 - Estudio - Comentarios -

Hola a todos y a todas.

En el día de hoy os presento un proyecto de vivienda unifamiliar adosada libre con piscina en Villanueva de Algaidas (Málaga).

1925_01-vivienda-en-villanueva-de-algaidas-arquitecto-raul-benitez

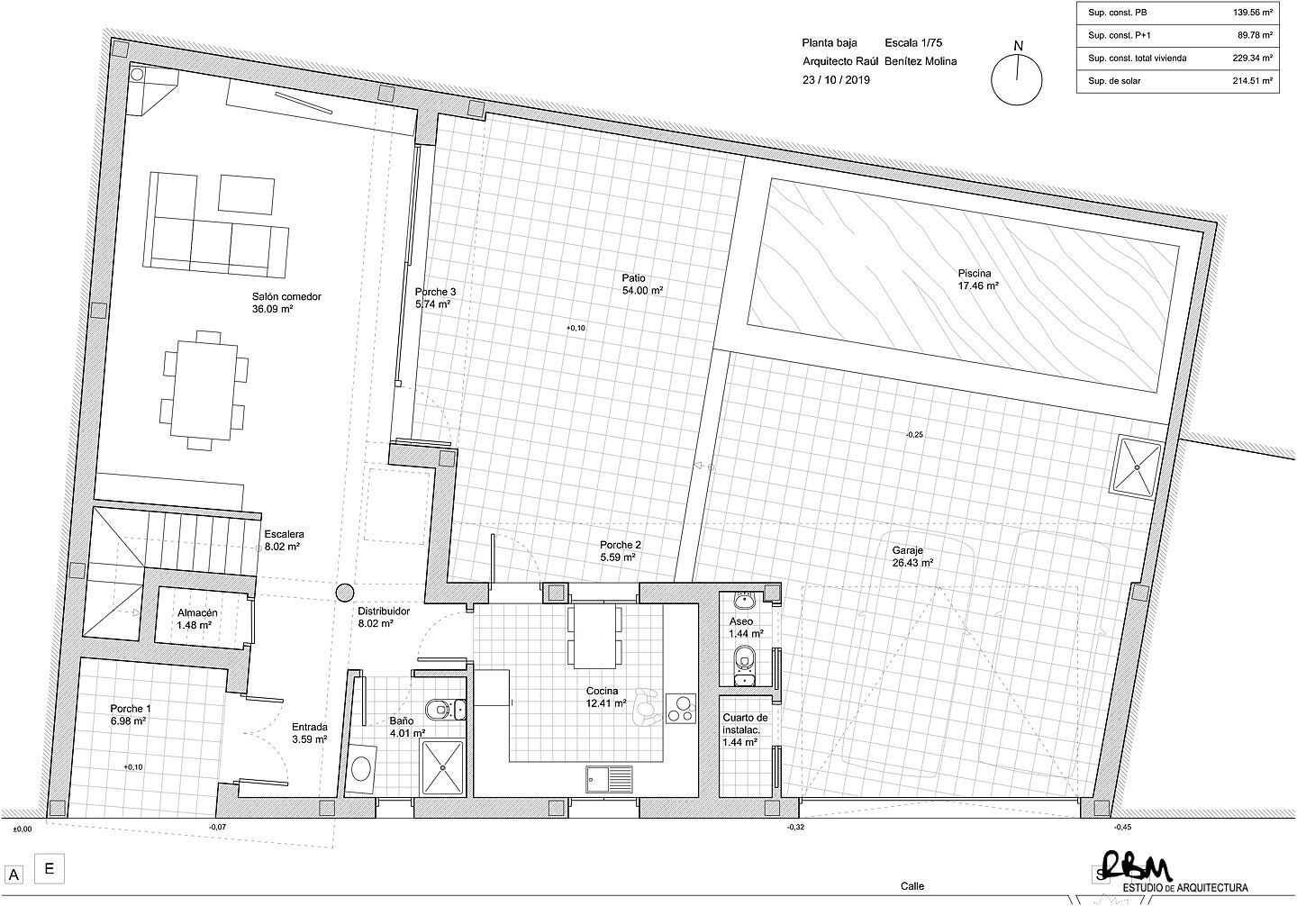
Este es el aspecto que tendría la vivienda que se encontraría en un área urbana. El proyecto estaba conformado por dos plantas que contaban con un amplio salón comedor con acceso directo al patio y a la piscina. Asimismo, la planta baja incluía un garaje.

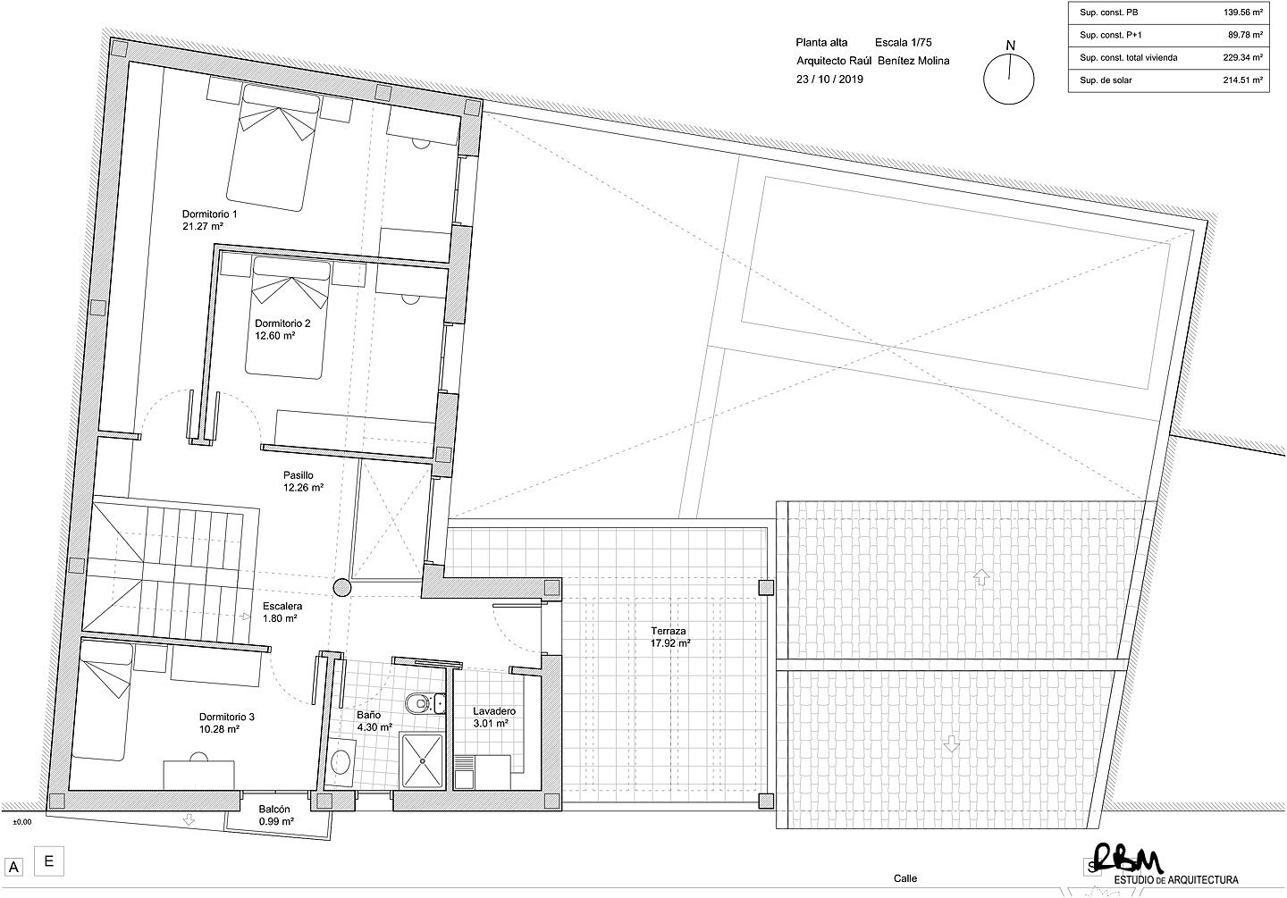
1925_02-vivienda-en-villanueva-de-algaidas-arquitecto-raul-benitez

Ya en la planta superior podemos observar que la vivienda contaba con tres dormitorios y un baño compartido. De igual manera, esta parte de la casa se pensó con una terraza privada para disfrutar al aire libre. Por otro lado, se tuvo en cuenta una posible ampliación de la zona externa planta baja con una biblioteca.

Este proyecto fue diseñado en RBM Estudio de Arquitectura a través del arquitecto Raúl Benítez Molina, y dirigida por el mismo.

1925_03-vivienda-en-villanueva-de-algaidas-arquitecto-raul-benitez

Este proyecto de vivienda finalmente no llegó a ver la luz.

Un saludo

Raúl Benítez.

+34 647698027 / +34 958192320

info@arquitectoraulbenitez.es

Compartir 
Ver anterior Ver siguiente