Vivienda unifamiliar aislada en Zarzalejos (Madrid)

01 julio 2025 - Estudio - Comentarios -

Hola a todos y a todas. 

En el día de hoy os presento un proyecto de vivienda unifamiliar situada en Zarzalejos (Madrid).

1927_00-vivienda-en-zarzalejos-arquitecto-raul-benitez

La vivienda se encuentra en suelo urbano en un área de expansión dentro de la localidad, donde predominan las viviendas unifamiliares aisladas, siendo además este proyecto uno de los pocos solares todavía pendientes de construcción.

1927_02-vivienda-en-zarzalejos-arquitecto-raul-benitez

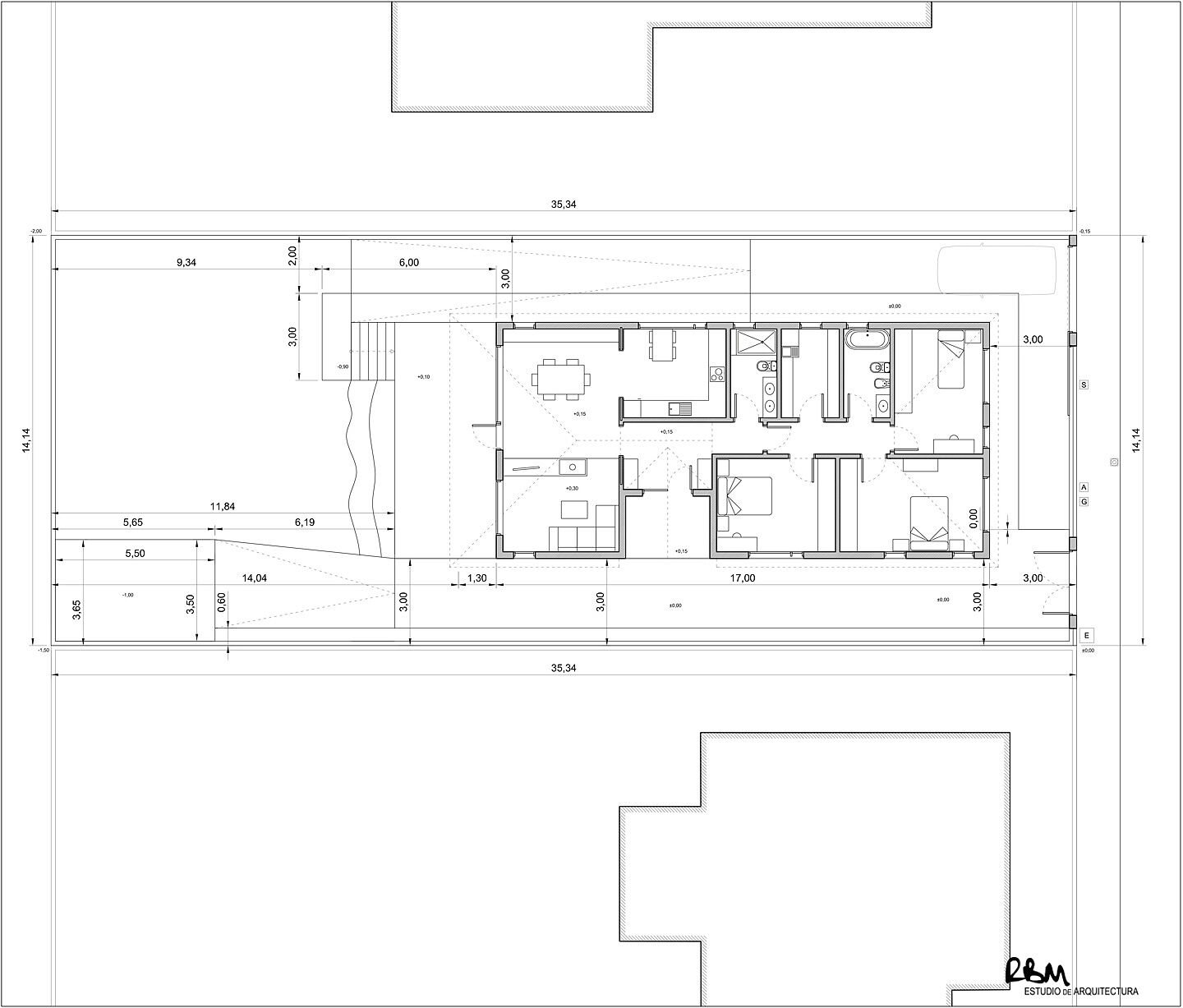
La parcela está rodeada por otras áreas privadas y tiene acceso al viario por el extremo de la parcela.

1927_03-vivienda-en-zarzalejos-arquitecto-raul-benitez

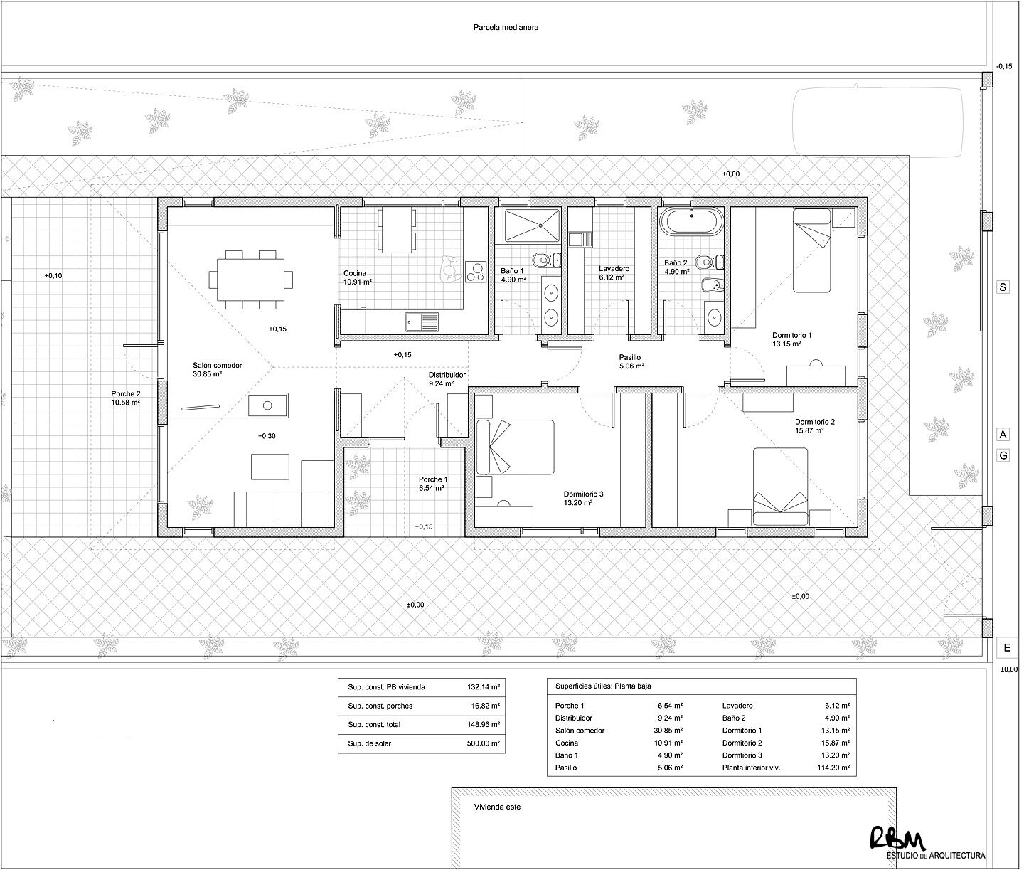
Este es el aspecto que tiene el interior de la vivienda. Como podemos observar, estamos ante un proyecto de casa de una única planta.

1927_04-vivienda-en-zarzalejos-arquitecto-raul-benitez

Su entrada está propuesta para que surja desde un lateral, favoreciendo una mayor privacidad con el exterior. Entrando más en detalle, la vivienda cuenta con tres dormitorios, un baño compartido, así como un amplio lavadero.

Por otro lado, la cocina se encuentra conectada con el salón-comedor dentro de un mismo espacio, el cual está abierto hacia un espacioso patio trasero, al que se puede acceder independientemente.

1927_05-vivienda-en-zarzalejos-arquitecto-raul-benitez

Podemos ver un tejado a cuatro aguas, así como una entrada lateral.

1927_06-vivienda-en-zarzalejos-arquitecto-raul-benitez

La vivienda fue concebida como un lugar optimo de descanso, careciendo de escaleras y contando con un gran porche al que se accede por el salón-comedor donde se puede desarrollar vida.

1927_08-vivienda-en-zarzalejos-arquitecto-raul-benitez
1927_09-vivienda-en-zarzalejos-arquitecto-raul-benitez

Durante el planteamiento del proyecto, se considero el control de la luz como un objetivo clave a conseguir en su inmortalización, con el fin de que el cliente consiga un gran confort en la estancia a lo largo de todas las estaciones del año.

1927_10-vivienda-en-zarzalejos-arquitecto-raul-benitez

La distribución de la vivienda está pensada para ser clara, funcional y compacta, teniendo un programa de desarrollo del proyecto realista.

1927_11-vivienda-en-zarzalejos-arquitecto-raul-benitez

Pese a lo avanzado del proyecto en su planteamiento y estructura, finalmente no llegó a ejecutarse.

Este proyecto fue diseñado en RBM Estudio de Arquitectura a través del arquitecto Raúl Benítez Molina.

Un saludo

Raúl Benítez.

+34 647698027 / +34 958192320

info@arquitectoraulbenitez.es

Compartir 
Ver anterior Ver siguiente