Improvement project for Morana courtyard in Cuevas de San Marcos, Málaga.

21 August 2023 - Office - Comments -

Hello everyone, 

Today, I present to you the improvement project for Morana courtyard in Cuevas de San Marcos, Málaga.

1904_08-recinto-polivalente-morana-cuevas-de-san-marcos-arquitecto-raul-benitez

This is a rehabilitation project aimed at increasing the occupancy capacity and reducing evacuation risks for the uncovered venue. This is achieved by proposing multiple emergency exits and adapting previously existing ones. Additionally, the plan includes an expansion of the restrooms, featuring an accessible restroom with an independent entrance.

1904_01-recinto-polivalente-morana-cuevas-de-san-marcos-arquitecto-raul-benitez
1904_02-recinto-polivalente-morana-cuevas-de-san-marcos-arquitecto-raul-benitez

The project was initiated in 2019 and was designed by RBM Architecture Studio under the direction of architect Raúl Benítez Molina.

Apart from the aforementioned changes, there's a partial improvement planned for the Civil Guard barracks, including enhanced parking. Prior to these changes, the demolition of the warehouse and garage roof and the intermediate enclosure are proposed.

1904_05-recinto-polivalente-morana-cuevas-de-san-marcos-arquitecto-raul-benitez

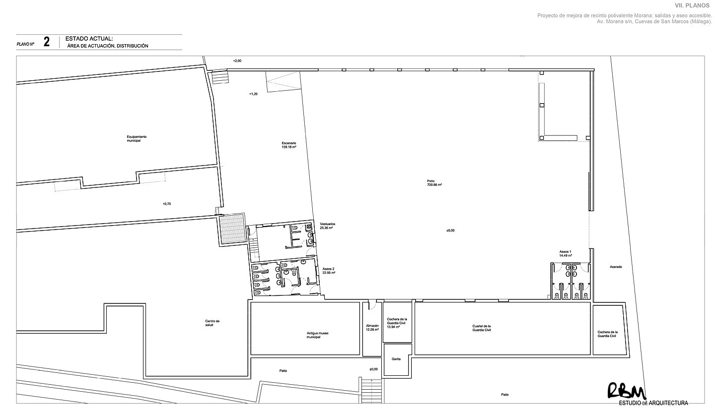
This presents the floor plan of the previously existing spaces.

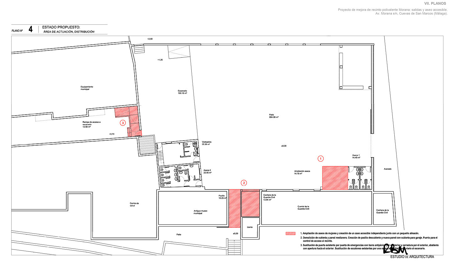
1904_06-recinto-polivalente-morana-cuevas-de-san-marcos-arquitecto-raul-benitez

Here, the different proposals are outlined:

1. Expansion of women's restrooms and creation of an independent accessible restroom next to the small warehouse.

2. Demolition of the roof and median wall to create an uncovered corridor and an improvement to the Civil Guard's garage. An access control door is proposed for the venue.

3. Replacement of the existing door with an emergency door equipped with a panic bar and an interior lock, swinging open outward. Additionally, the previously existing steps are replaced by a ramp accessible from the road to the stage.

1904_10-recinto-polivalente-morana-cuevas-de-san-marcos-arquitecto-raul-benitez
1904_09-recinto-polivalente-morana-cuevas-de-san-marcos-arquitecto-raul-benitez

Here, we present the final state of the rehabilitated spaces. We hope you like it.

 

A greeting.

Raúl Benítez.

+34 647698027 / +34 958192320

info@arquitectoraulbenitez.es

Share it 
Previous Next