Project for the renovation of the facilities at the Youth Center, Cuevas de San Marcos (Málaga).

16 August 2023 - Office - Comments -

Hello everyone, 

Today, I present to you the project for the renovation of the facilities at the Youth Center in Cuevas de San Marcos (Málaga).

1813_10-centro-joven-cuevas-de-san-marcos-arquitecto-raul-benitez

This is a rehabilitation and change of use intervention.

The center originally had a space on the first floor accessed by a staircase. Over time and due to the wear and tear, the space lost its functionality and no longer met the demands of the community.

1813_03-centro-joven-cuevas-de-san-marcos-arquitecto-raul-benitez

The project was initiated in 2019 and was designed by RBM Architecture Studio under the architect Raúl Benítez Molina.

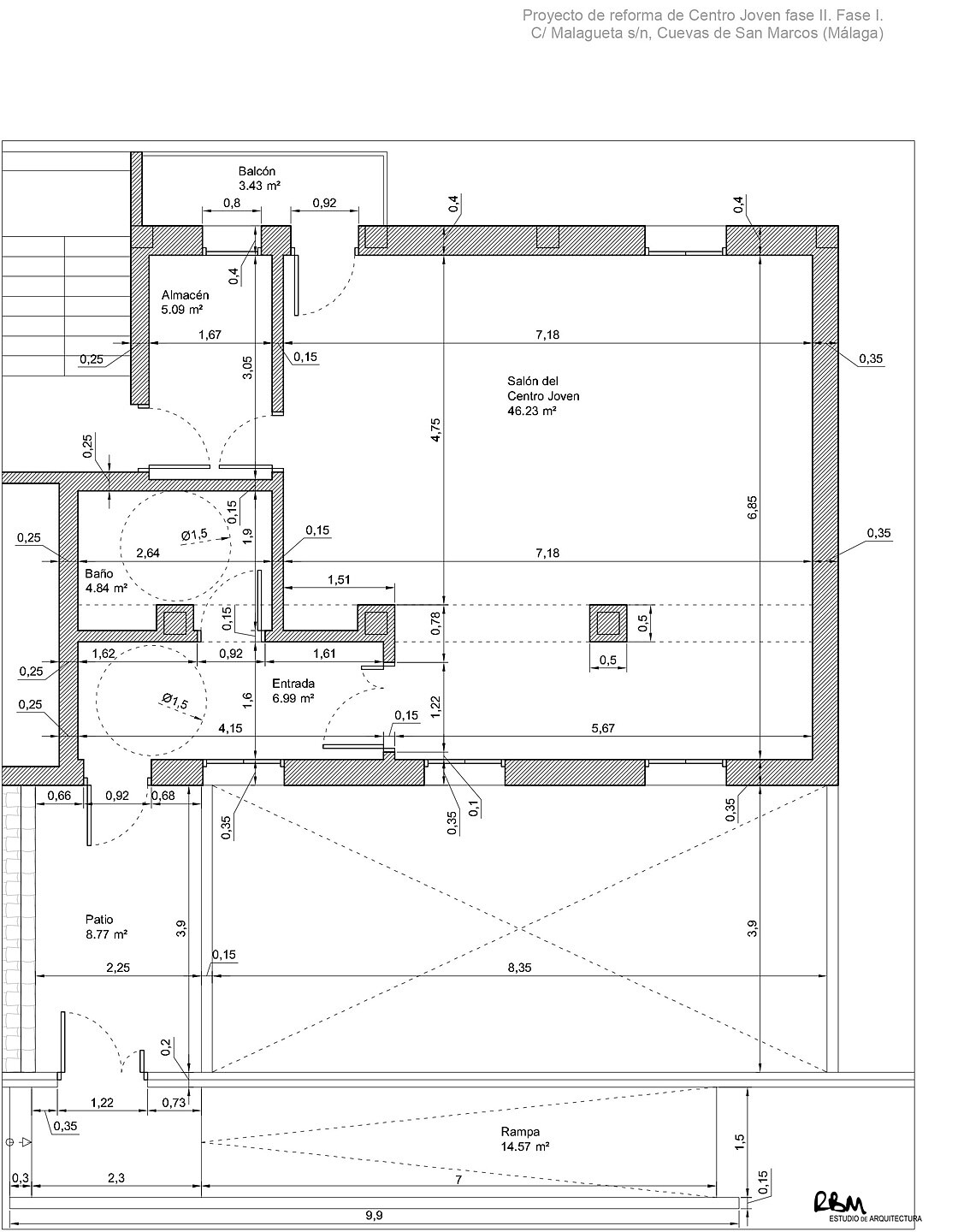
The intention is to demolish the adjoining roof to create a new entrance at the same level, incorporating the previously existing courtyard.

This way, the different uses of the building are separated and made compatible. The ground floor space is dedicated to the rest area for the emergency medical staff.

Thus, an accessible and independent entrance for the public is achieved.

1813_01-centro-joven-cuevas-de-san-marcos-arquitecto-raul-benitez
1813_02-centro-joven-cuevas-de-san-marcos-arquitecto-raul-benitez

Inside, the spaces showed visible deterioration that led the area to lose functionality and visitors. Additionally, there was no accessibility both from the interior and the exterior.

1813_05-centro-joven-cuevas-de-san-marcos-arquitecto-raul-benitez

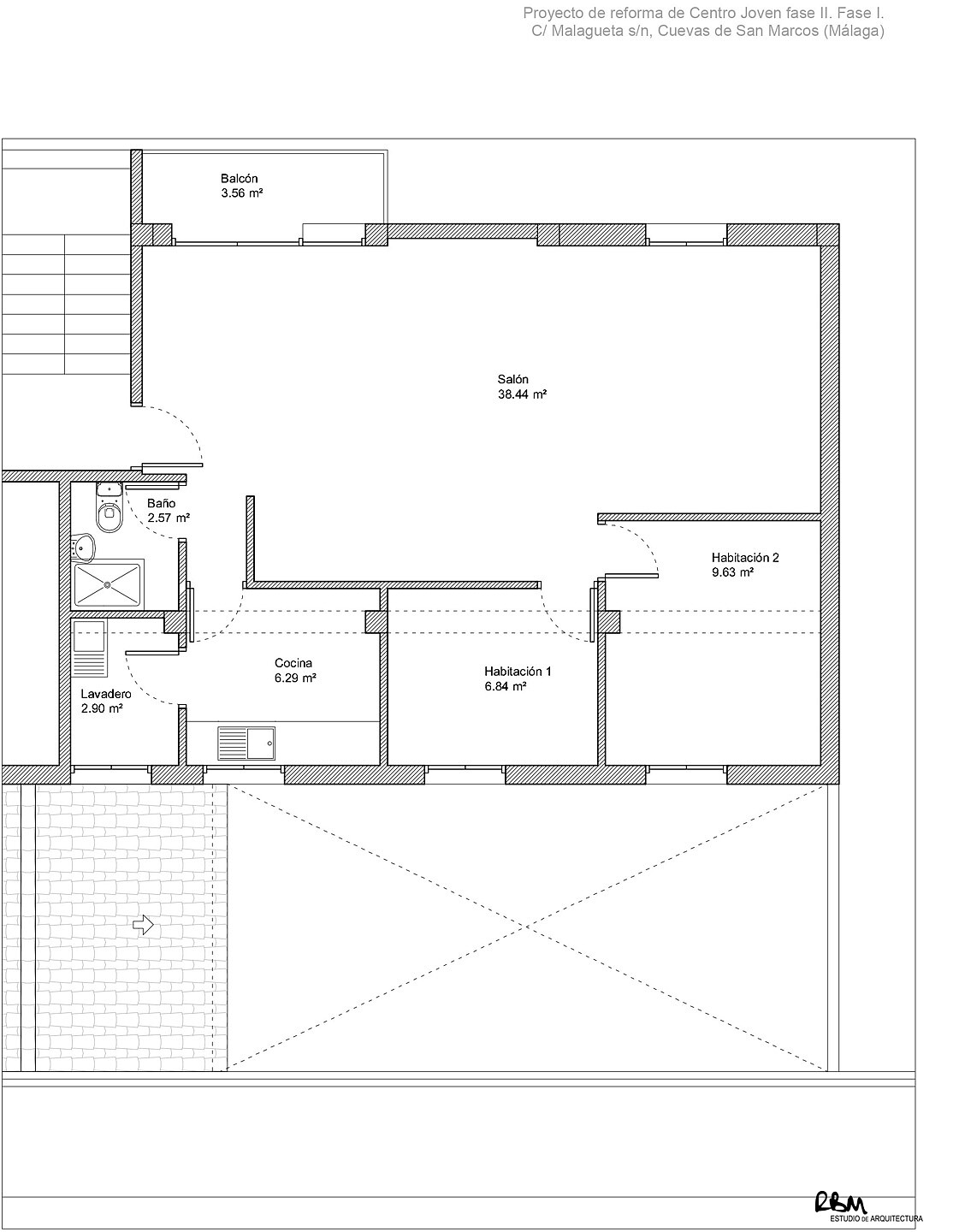
The original space included a living room, a bathroom, a kitchen, a laundry room, and two storage rooms.

1813_07-centro-joven-cuevas-de-san-marcos-arquitecto-raul-benitez

The proposal involves demolishing the interior layout and creating a new accessible bathroom and storage room.

The entrance is made through a small ramp at street level. The living room is expanded, totaling 46.26 m² of area, along with the bathroom. Obsolete uses from the previous center are removed.

1813_09-centro-joven-cuevas-de-san-marcos-arquitecto-raul-benitez

In conclusion, the aim of this intervention is to enhance the accessibility and comfort of the spaces for the people who enjoy them.


A greeting.

Raúl Benítez.

+34 647698027 / +34 958192320

info@arquitectoraulbenitez.es

Share it 
Previous Next